Muitas pessoas tem o sonho da casa própria. Uma boa escolha de moradia atualmente são os sobrados, principalmente se a família for grande e gostarem de bastante espaço. Essa opção proporciona aos indivíduos um grande leque de escolhas de pavimentos, quantidade de cômodos, etc, sem precisar ter um lote muito grande.
O primeiro passo para construir um sobrado é ter o lote. Depois disso, é necessário que um engenheiro, um mestre de obras sejam contratados para formular como será a planta da casa, dizer quais os materiais serão necessários para começar a obra e o preço da mão de obra que cobrarão. Posteriormente, será necessário contratar serventes de pedreiro para dar adiantamento no início das obras, para que assim ela não seja tão demorada.
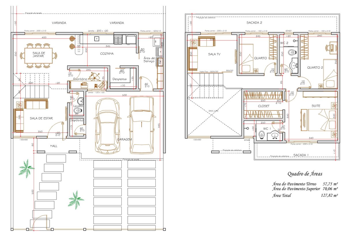
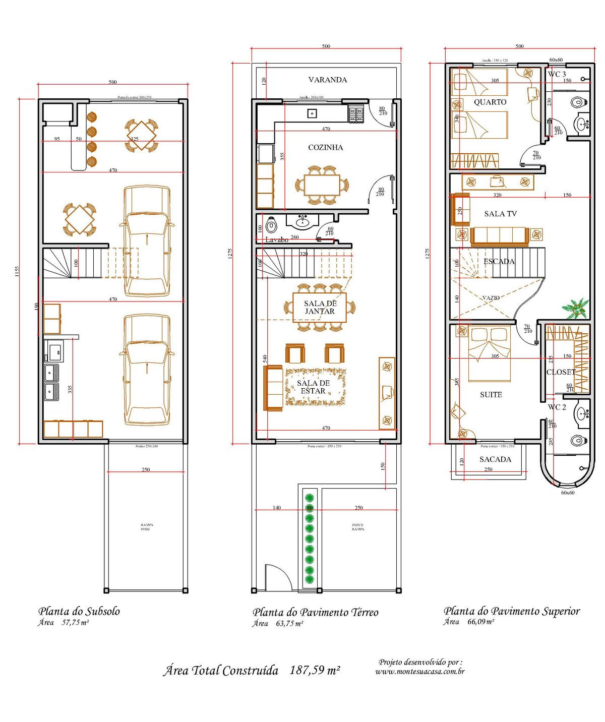
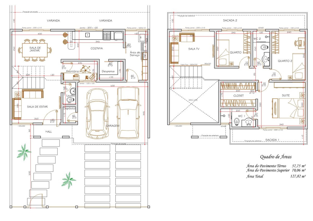
O projeto deverá ter a estrutura que o sobrado necessita, já que sua estrutura terá que suportar o peso de dois ou mais pavimentos. Dependendo da construção, o engenheiro e o mestre de obras ainda terão que fazer um projeto geológico, para saber se o solo irá suportar a obra, para que não exista nenhum risco posteriormente.
O preço final da construção costuma variar de acordo com a metragem do sobrado, os materiais utilizados e a mão de obra dos profissionais que trabalharem na obra. Calcula-se que um sobrado com 200 m² custe aproximadamente entre R$ 180.000,00 à R$ 270.000,00 mil reais.
Para regulamentar a documentação ou registrá-la para que o lote e o sobrado fiquem em dia com a lei, basta que o proprietário se destine a Prefeitura da região e ao Cartório de Registro de Imóveis.
